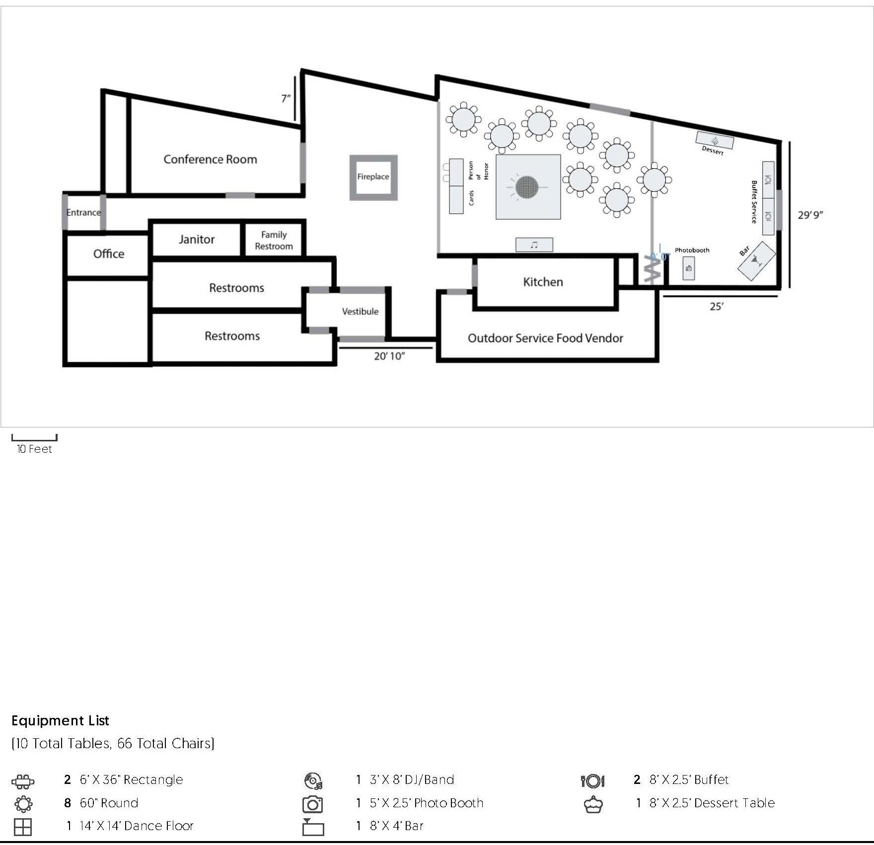
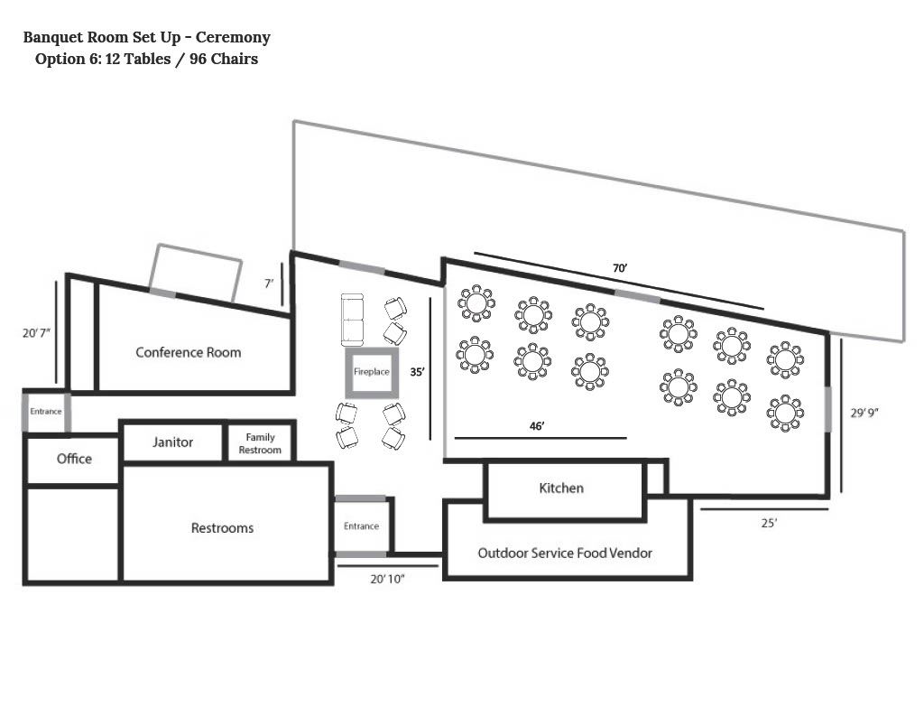
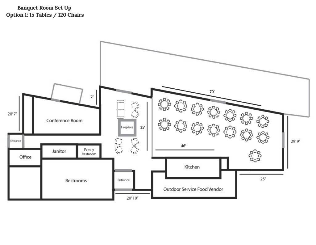
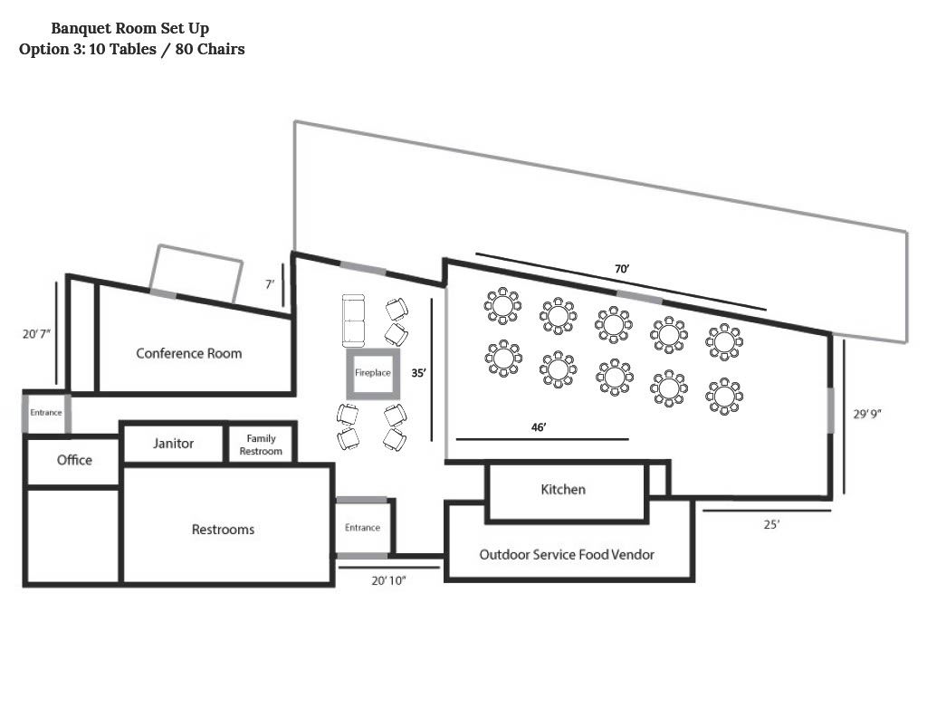
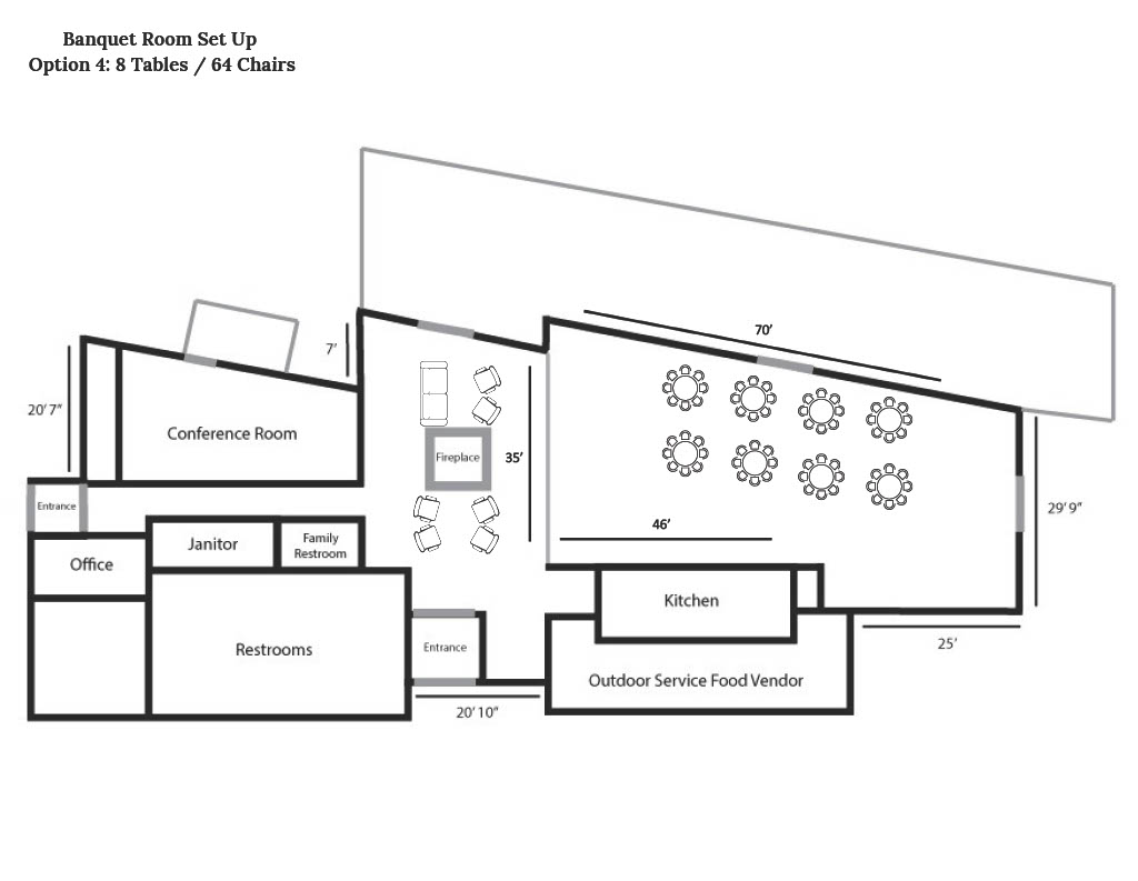
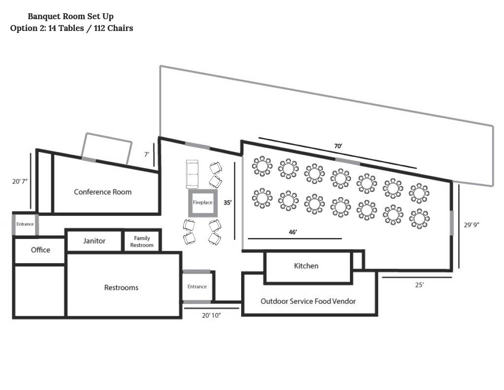
View 2025 floor plans (PDF). The final layout must be finalized 14 days before your event.
Items available at the Mississippi Crossings Event Center:
- 15 - 60" round tables
- 120 chairs
- 6 - high top round cocktail tables
- 6 - 6' banquet style tables (folding)
- 6 - 8' banquet style tables (folding)
- Rolling bar (used by caterer/bartender)
The lobby features a fireplace, couch, six lounge chairs, and two coffee tables.